Local News

Grit bin

Salt Bin Blues

The County Council has received requests for 1000 new salt bins across Hampshire. Officers are now assessing them and the logistics of keeping them filled with salt/grit.

18 Jun 2010
View
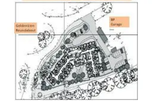
Cllr Hussey and the improved traffic lights

Improved Traffic Lights - Grove

When driving west from the Golden Lion roundabout towards the pedestrian crossing, it can be difficult to see the traffic lights when the evening sun is shining in your eyes.

18 Jun 2010
View

2025 Local Elections

Recent local election results should come as no surprise. Most citizens would tell you that “Britain is not working” and it certainly is not working for them as they struggle with the cost of living crisis and failing services.

Recent local election results should come as no surprise. Most citizens would tell you that “Britain is not working” and it certainly is not working for them as they struggle with the cost of living crisis and failing services. Amidst the uncertainty caused by the incompetence of our two major political parties, long the pillars of our political establishment, as citizens we have lost hope in a better tomorrow. 

Whilst Conservative mismanagement of the economy and its destruction of services did us all no favours, Labour has failed to fulfil its election promises. Badly. From winter fuel payments to job taxes and destroying family farms through ill judge inheritance tax changes, we have seen it all.

Furthermore, we have recently suffered from a stitch up in the cancellation of the elections in Hampshire. This was proposed by the Conservative County Council and adopted with speed by the Labour government. All in the interests of efficiency as we move to Local Government Reorganisation. This has led to a major democratic deficit, and we have a Conservative administration which in all probability would have been voted out of office. If you run a business £200,000,000 in the red and not delivering on its contracts, then you would go to the wall. In the case of Hampshire County Council, it is clear that turkeys do not vote for Christmas.

This also raises problems for Local Government Reorganisation where the primary local driver, Hampshire, has no democratic mandate. It also appears to be driven by narrow self-interest rather than the public interest which we deserve. How do we move forward? Rather than adopting a justified “plague on all your houses”, voters should look at the values and competence of the candidates and parties. Clearly Labour and the Conservatives are not the answer.

Councillor Luigi Gregori

Lib Dem Parliamentary Spokesperson NW Hants

This website uses cookies

Like most websites, this site uses cookies. Some are required to make it work, while others are used for statistical or marketing purposes. If you choose not to allow cookies some features may not be available, such as content from other websites. Please read our Cookie Policy for more information.

Essential cookies enable basic functions and are necessary for the website to function properly.
Statistics cookies collect information anonymously. This information helps us to understand how our visitors use our website.
Marketing cookies are used by third parties or publishers to display personalized advertisements. They do this by tracking visitors across websites.
Administrator preview
Live version at www.basingstokelibdems.org.uk